名古屋公社(一般賃貸住宅)
シティファミリー港楽|050-3558-1924
| 家賃 | お問い合わせ下さい |
|---|---|
| 管理費・共益費 | お問い合わせ下さい |
| 物件住所 | 詳細はお問い合わせ下さい |
| 交通 | 詳細はお問い合わせ下さい |
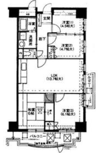
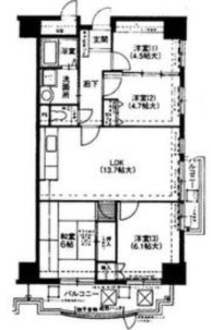
| 間取 | 1K 〜 4LDK 等 |
| 敷地内駐車場 | あり / なし(お問い合わせ下さい) |
物件詳細メモ
シティファミリー港楽
実際には、愛知県のUR賃貸と名古屋市住宅供給公社は初期費用が安い。In fact,UR chintai is CityFamilyKoraku | してぃふぁみりーこうらく|shitexifamiri-kouraku 住所詳細 名古屋市港区港楽2-10-20 エレベーター あり(1基) ベランダの方角 南 駐車場 地上平面:8650円(満車) ※掲示板にて抽選日の発表があります。 地下平面:15270円 詳細 名港線「港区役所」駅から徒歩約3分程。港文化小劇場の上に位置します。 ららぽーと名古屋のような大型ショッピングセンターや、コンビニなども充実しています。 キャンペーン中は、フリーレント1ヶ月(家賃無料)、家賃11ヶ月20%オフになります。 5年定期借家20%オフキャンペーンは終了しました。 お気軽にご相談下さい。 管理事務所 平日 8:45~12:00・13:00~17:00 事前にご予約が必要です。 定住促進> 収入基準 https://ur-nagoya.com/howto-beginner/jkk/income/teijyusokushin/ 必要書類 https://ur-nagoya.com/howto-beginner/jkk/teijyusokushin-documents/ 入居までのながれ https://ur-nagoya.com/howto-beginner/jkk/teijyusokushin-flow/ お問い合わせ 最新情報はUR名古屋公社にご確認下さいませ。 初めてのUR賃貸・初めての公社 https://ur-nagoya.com/howto-beginner/ 光回線の確認 https://webcgi-west.jp/app/alxxnx/cao/SearchAddress 最後に、名古屋の名古屋市住宅供給公社はUR名古屋公社しかない。Finally, UR chintai is 埋め込み シティファミリー港楽 評判|シティファミリー港楽 仲介料|シティファミリー港楽 名古屋|名古屋市住宅供給公社|JKKシティファミリー港楽最寄り駅からシティファミリー港楽
周辺地図